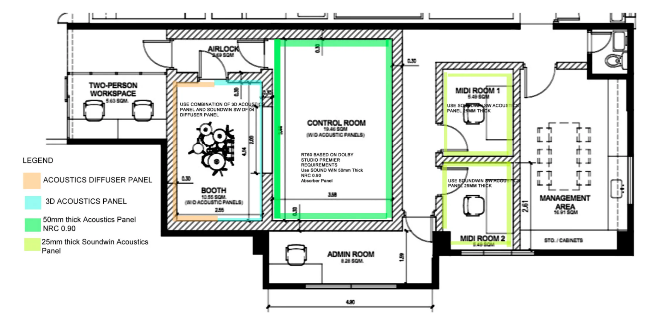
WD Philippines is a professional recording company located in Makati City, Philippines, that provides a full range of music and audio services. The studio has a control room, a recording studio, and two digital music studios that require professional acoustic treatment.

1. Overall design goals
Soundproof treatment:
Block external noise (traffic, building vibration and crosstalk between rooms).
Sound absorption treatment:
Control reverberation time, avoid interference from sound reflections and ensure recording purity.
Uniform sound field:
Ensure accurate monitoring environment, suitable for diverse needs such as music production, dubbing, and mixing.
Reverberation time design target:
Recording studio: 0.3-0.5 seconds, control room: 0.2-0.3 seconds, creative studio: 0.2-0.3 seconds

2. Acoustic treatment proposal:
Sound insulation treatment:
Due to the high requirements for sound insulation, the wall adopts soundproof structure wall with professional soundproof panel, 50mm high-density sound insulation cotton, and the 90mm inner cavity. The total thickness of the wall reaches 300mm.
The ceiling also adopts soundproof structure with professional soundproof panel and high-density sound insulation cotton with the inner cavity.
The ground soundproof system uses a floating floor structure with ground shock-absorbing bricks, high-density sound insulation cotton inside, and professional soundproof panels on the surface.
Through the complete sound insulation treatment of the six surfaces of the wall, ceiling and floor to achieve the effect of isolating airborne sound and solid sound.
Soundproof door:
Adopt 90MM thick SOUNDWIN reinforced soundproof door, which has a sound insulation coefficient of up to 43DB. SOUNDWIN professional soundproof doors are available in two thicknesses: 70MM and 90MM. They are made of thickened galvanized steel plate structure and filled with high-performance sound insulation materials. The finish can be selected from wood grain color or spray-painted solid color.


Sound absorption and diffusion treatment:
The control room uses 50MM full-frequency fabric acoustic panels on the wall, and the NRC can reach an ideal effect of 0.9.
The wall of the recording studio, we covered half of the wall with ECO friendly 3D polyester fiber acoustic panels, and the other half with solid wood diffusers , so as to achieve the functions of both sound absorption and diffusion, while showing a high-end and beautiful decorative effect in appearance.
The two digital music creation rooms, due to the small size of the room, we use ECO friendly and odorless 25MM polyester fiber fabric acoustic panels to cover the wall, which can maximize the use of space and effectively absorb sound.
After it is completed, the customer spoke highly to the soundproof effect and acoustic performance.